work               about                          

benji magin

   bam287@cornell.edu          ︎  

work      about                 benji magin                                     ︎




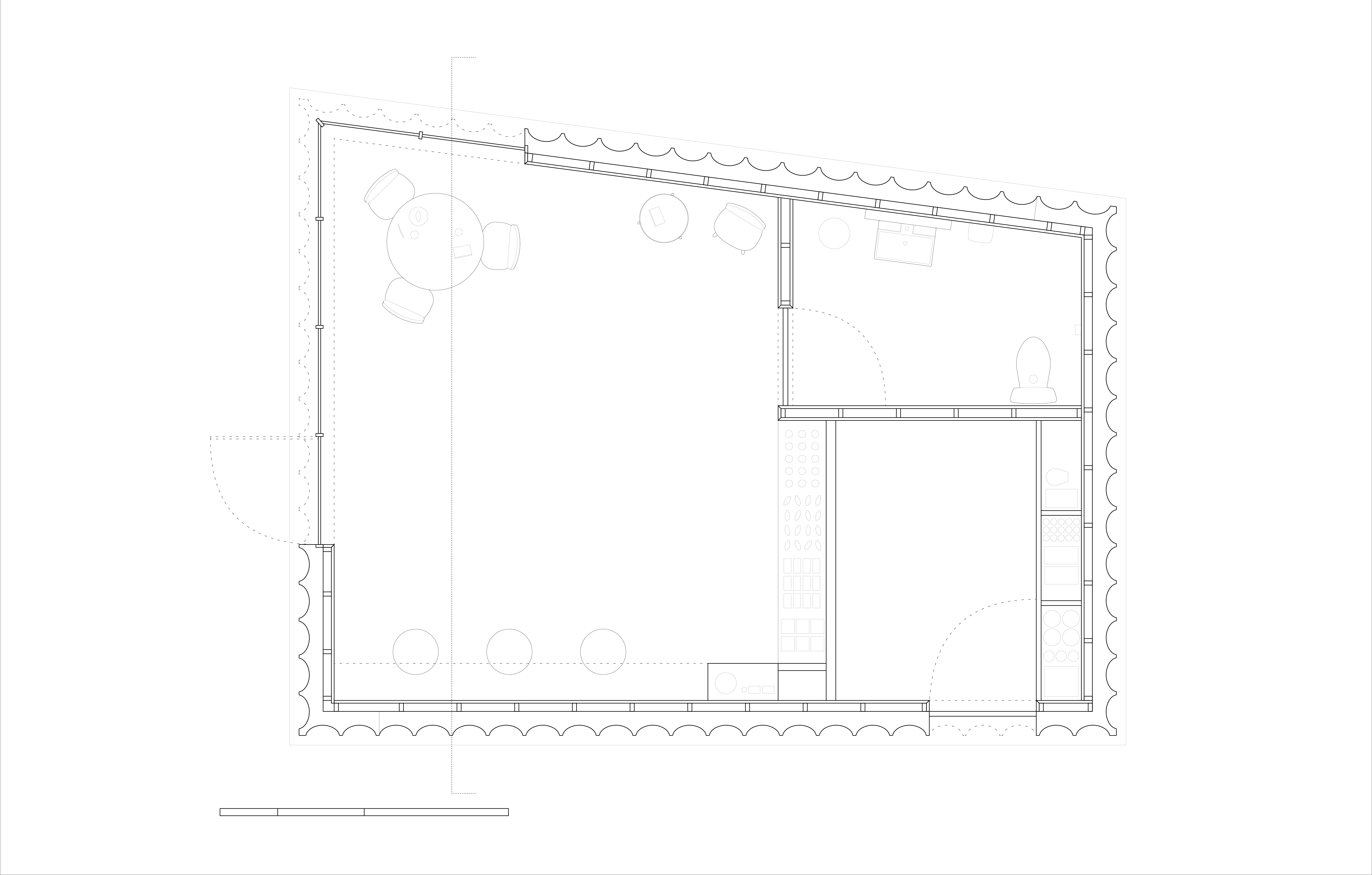
Hoge Veluwe Park Cafe





work in progress    ⚫ ⬛

Typology:  Cafe/Info Stand

Timeline:  Spring 2021

Location:  Arnhem, Netherlands

Professors:  Rodolfo Reis Dias

Collaborators:  None